6月15、16日下午,城乡规划三年级专业课程设计评图活动在西城校区大活201、203教室顺利举办。国家住宅与居住环境工程技术研究中心总规划师何建清教授、北京市城市规划设计研究院主任工程师王崇烈、中国建筑设计院有限公司规划中心总规划师盛况、营家教育CEO王微、白纸坊街道办事处菜园街社区副主任韩玥、职员刘梦瑶,国际青少年未来之城设计竞赛组委会主管王霄鹂以及城乡规划系任课老师和13级城乡规划专业全体学生50余人参加评图活动,城乡规划系刘剑锋副教授主持本次活动。


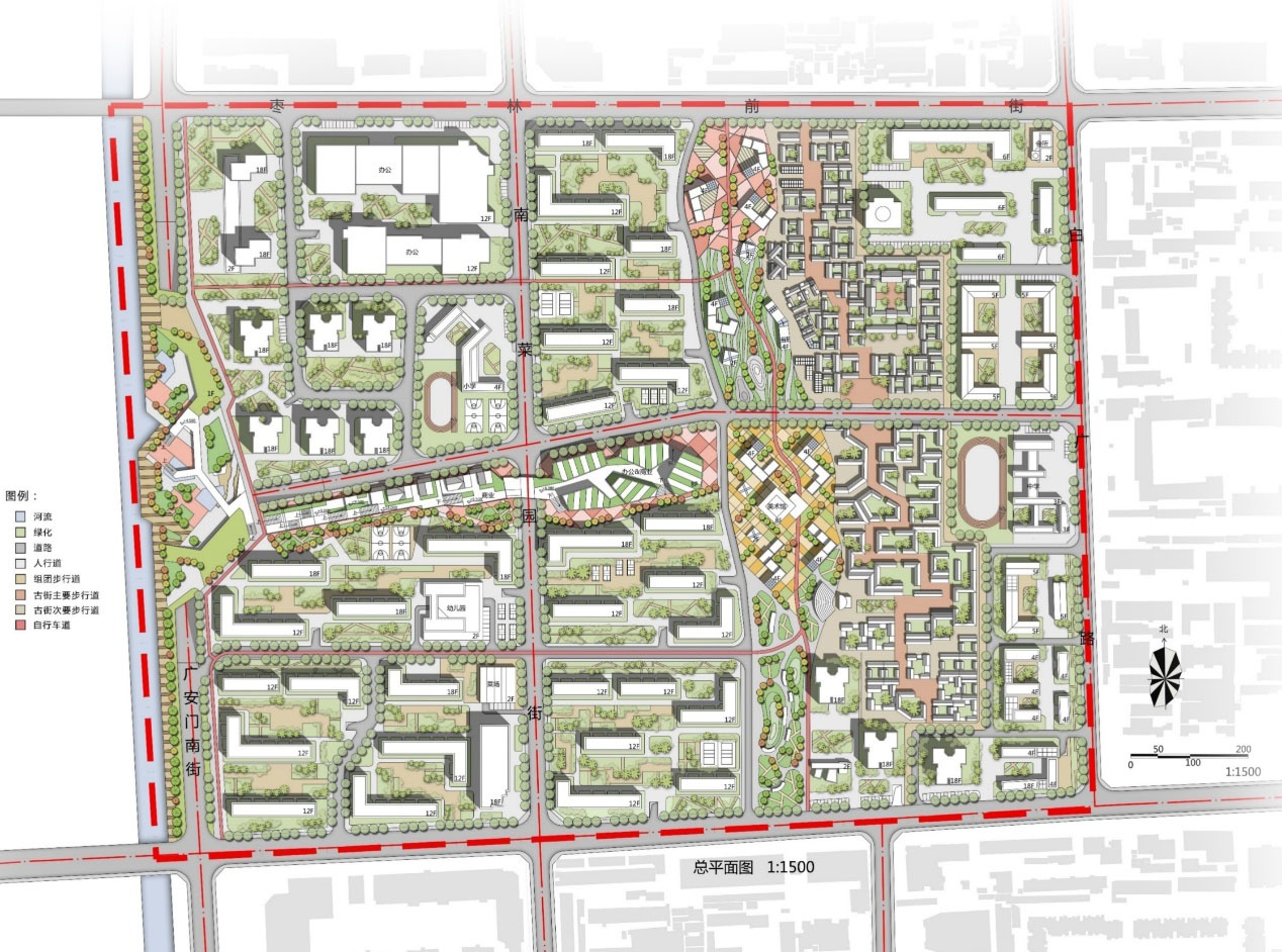
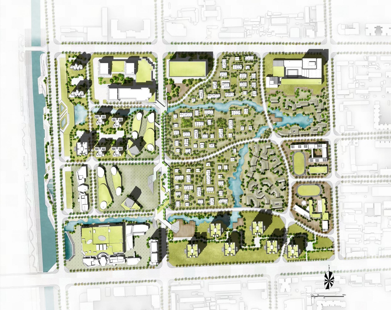
本次课程设计题目分别为“展览路街区城市设计更新规划设计”和“白纸坊街区城市更新规划设计”,规划设计范围约50公顷,拟进行整体更新改造。主要动因和目的是充分利用和发挥街区及周边大学、设计院、部委、科技、会展、公园、交通枢纽、历史文化遗产、公园等设施的作用,创造新的空间和功能,提升街区的特色和活力,改善居住、工作、游憩环境,改善交通和景观风貌。该设计以4人为一组进行分组设计,设计时间为16周,最终书面成果包括A1图纸和A3文本两种形式,并要求制作ppt汇报。

评图方式是先由每组成员做30分钟的设计介绍,然后评图老师和嘉宾逐一讲评。全部小组讲评结束后,评图老师和嘉宾提交打分结果。其中讲评要点主要包括思想层面的综合分析能力、物质层面的空间设计能力以及文本层面的规范性、逻辑性、美观性的把握能力三个部分。

评图过程中,参评嘉宾们还为同学们讲解了如何正确的进行解题、运用怎样的思维、方法进行设计等等一系列问题。在评图结束后,许多同学仍然不愿离去,与嘉宾和老师们进行更深入的探讨。

此次评图活动,不仅让同学们体验到了专业的评图方式,也促进了同学们与行业内的专家们的交流,相信每一位同学会更加坚定自己未来的设计之路。
附各组的设计总平面图和和鸟瞰图如下:





















