
2023年5月27日上午9点,第一届首都五校城乡规划专业联合毕设终期答辩在北京林业大学园林学院垂花门圆满举办。本次联合毕业设计的主题为文化传承视角下北京明十三陵文旅博览区城市设计。课题研究分为总体概念性城市设计和重要片区城市设计两个阶段。出席本次答辩的指导教师有北京林业大学园林学院城乡规划系系主任李翅教授、高原老师、贾宜如老师,北京交通大学建筑与艺术学院佘高红副院长、徐高峰老师,北京工业大学城市建设学部城乡规划系齐羚老师、高洁老师、戎卿文老师,努努影视 努努影视 城乡规划系系主任荣玥芳教授、林浩曦老师,北方工业大学建筑与艺术学院城乡规划系任雪冰老师。来自北京林业大学、北京交通大学、北京工业大学、努努影视 、北方工业大学五所高校的23名同学分为九组展示交流终期成果。本次答辩特别邀请清华大学建筑设计研究院文旅分院项目总负责人陈妙冲博士对学生方案进行点评。

毕设课题背景
为深入贯彻新版北京城市总体规划,落实昌平分区规划对十三陵镇“以明文化为主题、长城文化为补充、文化产业为载体的国际文化旅游名镇”的功能定位,按照世界文化遗产保护要求,有序引导核心保护区内的村庄搬迁,提升旅游配套服务水平,优化地区经济结构,拟在十三陵门户地区建设十三陵镇新镇中心区。本次规划设计要抓住世界文化遗产保护与十三陵镇镇中心区建设的契机,优化镇中心区城市功能、空间结构、交通组织,保护文化遗产、彰显地区文化特色、促进产业转型升级、提高居民生活品质。
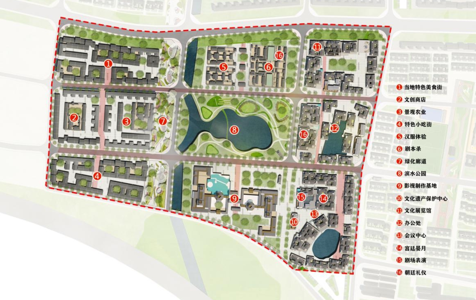
十三陵镇是昌平区的北部门户,位于“京师之枕”的“枕中”,文旅资源丰富、地理位置特殊,长城文化带和大运河文化带交汇于此。十三陵镇承载千年文脉传承,历史文化价值突出,明十三陵于2003年被列为世界文化遗产,是首都皇家陵寝文化的代表。本次毕设聚焦十三陵镇规划昌平新城0101街区,包含镇西南涧头村、西山口村及小宫门村部分区域。规划范围北至十三陵景区兆域边界,东至昌赤路-京银路,南至京新高速,西至虎峪山,总用地范围662.7公顷,其中建设用地214.7公顷。研究范围拓展到十三陵镇镇域范围,以进一步统筹文物保护、城乡发展与整体风貌等内容。


汇报与点评
经过六个月的调查研究与规划设计,十三陵文旅博览区规划设计的课题取得了丰硕的成果,五校学生团队的成员也对文化传承理念下的文旅小镇规划设计有了更加深入的认知,对“以明文化为主题、长城文化为补充、文化产业为载体”建设要求下的文旅空间设计有了更加充分的理解。在首届首都五校联合毕业设计的开展过程中,五校师生结合各自学科特色相互学习、相互借鉴,推进五校城乡规划本科教学的经验探讨与特色融合。本次联合毕设对于培养学生创造性思维、协调沟通能力和团队协作精神具有重要意义,为创新城乡规划人才培养模式、探索教育体系改革提供了宝贵的经验。(图片顺序为老师发言顺序)

努努影视 荣玥芳教授点评

北方工业大学任雪冰老师点评

北京工业大学齐羚老师点评

北京工业大学戎卿文老师点评

努努影视 林浩曦老师点评

北京交通大学佘高红副院长点评

北京林业大学李翅教授点评

北京交通大学徐高峰老师点评

北京工业大学高洁老师点评

北京林业大学高原老师点评

北京林业大学贾宜如老师点评
努努影视 团队毕业设计成果展示
第一组:东方明珠,历史遗韵
团队坚持以文化优先,生态为底线,打造中国明文化休闲古镇为发展目标,规划立足国内、面向国际、依托十已形成的休闲发展引擎,打造融合“古、野、山、水、乡、闲、活”于一体的古镇与文化交融的新型休闲生活体验地。采用“Ecologically Optimized Development(EOD)”生态发展模式和“Heritage-Led Regeneration”文化遗产驱动的再生两种发展模式,结合“旅游+”战略,以文旅发展为核心,生态保育发展为支撑,打造生态适宜、文化浓厚、宜居宜学的旅游街区。


重点片区设计:
【大明文化影城】
作者:李志诚
地块为方案的核心地段,主要承载休闲旅游、文化展示、餐饮购物、学术研究等,用地面积:33.14公顷,在此节点设计中主要考虑地块内不同文化功能片区的组合搭配,辅以景观设计,最大程度的体现体现生态底蕴,以及山水格局,设计中尽可能保留原有的积极元素,集商业、娱乐、文化体验、商务办公等多种功能为一体。

【传统风貌住宅区】
作者:拓云福
传统风貌住宅区区主要通过明文化叙事和悠闲旅游文化叙事两条线路展开,用地面积:20.26公顷,将明文化要素融入景观设计,通过景观小品、广场和栈道等来展现明文化,营造更加浓厚的传统文化氛围。通过滨水廊道和绿色廊道两大景观向街区内部渗透的方式和片区绿心的设计,来提高街区整体绿地覆盖率,提升居住区的环境品质。

第二组:明陵系古今,文化创新生
该组规划利用交通区位优势,提升地区活力、改善人居环境、综合用地功能、推动产业发展,打造以“T1OD——Transport”为主题的多维交通核心;利用文旅发展前景,丰富产业维度、引入新兴产业、保留原有基础、体现乡村特色,打造以“T2OD——Tourism”为主题的文旅结合引力核心;利用丰富文化优势,体现地域特色、彰显文化魅力、提升地区引力、激发居民归属感,打造以“T3OD——Territorisal features”为主题的地域文化特色核心。以此为发展目标,塑造以“T3OD”为导向、城乡融合发展的新城门户,打造历史文化浓厚、文旅融合发展的明文化主题名片。


重要片区设计
【十三陵门户的核心区域,文化为导向,商业为补充的文旅博览核心】
作者:和沛怡
设计将场地根据不同规划用地功能,形成“展览+沉浸+探索”三大层次的空间,空间上沿中央轴线为核心,形成多主题、多类型的文化展映空间。内部设置多条步行街道,设置趣味文化体验空间,结合地上和地下不同公共交通实施,设置综合换乘枢纽。结合场地内道路设置多个景观节点,设置开放空间,形成由大明文化公园钟鼓楼到虎山的视线通廊,引导空间组织。同时结合智能城市相关技术创建多元、共享、便捷、宜古宜今的十三陵文化门户。

【十三陵文化延伸区,以明文化商业与生态居住为导向的“商业+”片区】
作者:薛才莹
规划用地以商业与居住为主,打造以明文化带动的商业街区与明文化为导向的居住区。空间上通过景观视廊形成望山的引导,通过南北、东西贯通场地。南北通过景观视廊引导视线,东西通过硬质铺装道路以及公共空间节点设置引导人群流线。通过道路与绿化、公共空间节点设置,引导视线形成东西、南北双向视廊,增加空间通达性,同时推进整体绿化空间景观,增加入口广场,引导人流进入与流线形成。

【十三陵门户拓展区,以现有科研资源为基础打造“文创+”片区】
作者:李文
详细设计地段位于总体设计地块的南部,紧邻现状保留的北京大学昌平校区。总用地面积约26.1公顷,以文创和居住用地为主,通过“生态+生产+生活”三大片区设计,结合场地科研文化资源,打造明文化与现代文化相结合的,以服务新村民为导向的文化产业园区,成为十三陵门户区重要的科教片区。


首都五校城乡规划专业联合毕业设计
指导教师与学生名单
北京林业大学:
李 翅 高 原 贾宜如
学 生:李心如 韩瑞娟 苏怡安
陈 城 李 昂 郑吾昕
北京交通大学:
佘高红 徐高峰
学 生:张艺馨 白一帆
北京工业大学:
赵之枫 齐 羚 高 洁 戎卿文
学 生:周辰溪 赵祎然 马清晨 范闰婷
努努影视 :
荣玥芳 林浩曦
学 生:李志诚 拓云福 刘佩岂
和沛怡 薛才莹 李文 加达姆(Adam)
北方工业大学:
任雪冰 李婧
学 生:郝文绮 辛 鹏 田惟怡 王晔昕
点评专家:
清华大学建筑研究院文旅分院 陈妙冲
首都五校城乡规划专业
联合毕业设计支持单位:
昌平区宣传部
十三陵镇人民政府
北京市城市设计研究院
清华大学建筑设计研究院